- Accueil
- Vente
- Alpes maritimes
- Nice
- Duplex toit terrasse vue mer et ville
Référence : 272
Calculette
Partager
Duplex toit terrasse vue mer et ville
Description de l'offre
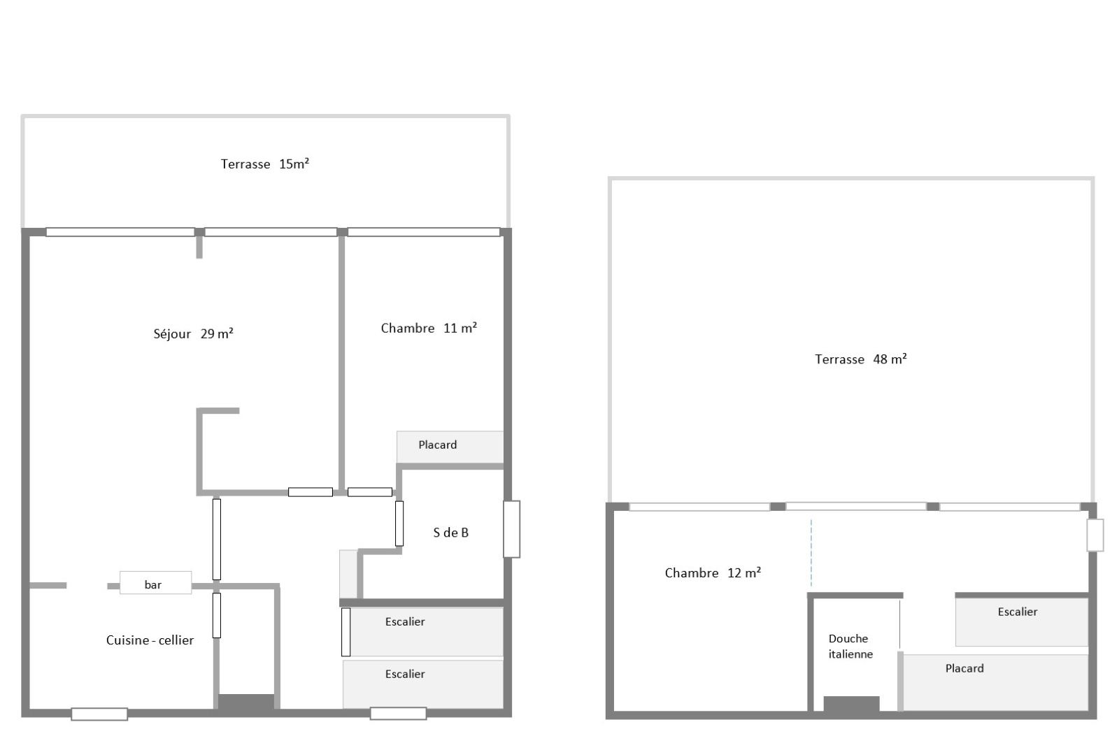
Situé dans une petite copropriété calme et bien entretenue au cœur du domaine du Piol , ce magnifique duplex de 83m2 distribué en 3 pièces offre un cadre de vie exceptionnel entre ciel et mer. Au premier niveau, vous découvrirez un bel espace de vie composé d’un séjour lumineux avec de larges baies vitrées s'ouvrant sur une première grande terrasse , offrant une vue dégagée sur la ville et la mer, une cuisine ouverte entièrement équipée, un cellier , ainsi qu’une première chambre avec rangements intégrés et une salle de bain attenante. À l’étage supérieur, accessible par un escalier , la suite parentale occupe tout le dernier niveau. Véritable cocon de tranquillité, elle bénéficie d’une terrasse de 55 m2 offrant une superbe vue panoramique sur la mer et les toits de la ville.. Une salle d’eau privative , WC et des placards sur mesure complètent cet espace. Faibles charges 50 euros par mois . A visiter sans tarder ...
Descriptif du bien
- Code postal : 06000
- Surface habitable (m²) : 82 m²
- Surface loi Carrez (m²) : 72 m²
- Nombre de chambre(s) : 2
- Nombre de pièces : 3
- Etage : 1
- Nombre de niveaux : 2
- Ascenseur : NON
- Vue : Mer et ville
- Nb de salle de bains : 1
- Nb de salle d'eau : 1
- Cuisine : SEPAREE
- Type de cuisine : EQUIPEE
- Balcon : NON
- Terrasse : OUI
- Cave : NON
- Exposition : SUD-EST
- Année de construction : 1950
- Quartier : Centre ville, Mantega-Righi, Parc Impérial, Pessicart Mantega, piol
- Copropriété : OUI
- Lot n° : 3 et 4
- nombre de lots : 4
- plan de sauvegarde : NON
- statut du syndic : pas de procédure en cours
- Prix de vente : 470 000 €
- Les honoraires d'agence seront intégralement à la charge du vendeur
- Charges : 50 €
- Taxe foncière annuelle : 1 500 €
Logement à consommation énergétique excessive : classe F
Montant estimé des dépenses annuelles d'énergie pour un usage standard est compris entre 2 330 € et 3 230 € . Prix moyens des énergies indexés sur les années 2021, 2022 et 2023 (abonnements compris).
La ville de Nice (06000)
Ce bien vous intéresse ?
Partager l'offre
PIERRE ANTOINE DELBARRE Delta Immobilier
Nice (06100)
Les informations recueillies sur ce formulaire sont enregistrées dans un fichier informatisé par La Boite Immo agissant comme Sous-traitant du traitement pour la gestion de la clientèle/prospects de l'Agence / du Réseau qui reste Responsable du Traitement de vos Données personnelles.
La base légale du traitement repose sur l'intérêt légitime de l'Agence / du Réseau.
Elles sont conservées jusqu'à demande de suppression et sont destinées à l'Agence / au Réseau.
Conformément à la loi « informatique et libertés », vous disposez des droits d’accès, de rectification, d’effacement, d’opposition, de limitation et de portabilité de vos données. Vous pouvez retirer votre consentement à tout moment en contactant directement l’Agence / Le Réseau.
Consultez le site https://cnil.fr/fr pour plus d’informations sur vos droits.
Si vous estimez, après avoir contacté l'Agence / le Réseau, que vos droits « Informatique et Libertés » ne sont pas respectés, vous pouvez adresser une réclamation à la CNIL.
Nous vous informons de l’existence de la liste d'opposition au démarchage téléphonique « Bloctel », sur laquelle vous pouvez vous inscrire ici : https://www.bloctel.gouv.fr
Dans le cadre de la protection des Données personnelles, nous vous invitons à ne pas inscrire de Données sensibles dans le champ de saisie libre.
Ce site est protégé par reCAPTCHA, les Politiques de Confidentialité et les Conditions d'Utilisation de Google s'appliquent.
